Apartmány Loučná
ID 661
Krušné hory
Ústecký kraj, Chomutov, Loučná pod Klínovcem, Loučná 54, Katastr: Loučná pod Klínovcem, Parcela: 59
Cena na vyžádání
V případě zájmu volejte nonstop linku:
800 100 164
Popis projektu
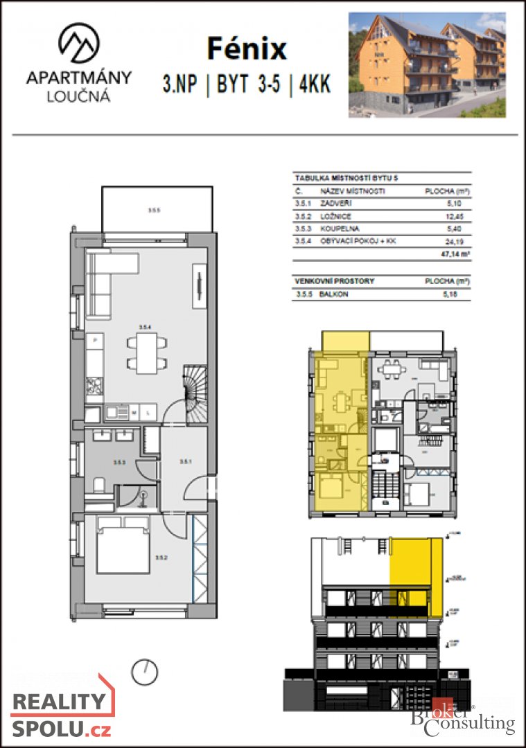
Nabízíme Vám prodej tří bytových jednotek - apartmánů. Jedná se novostavbu v obci Loučná u Klínovce.Jeden byt o velikosti 2KK v 2. patře a dva mezonetové byty ve 3.patře. V ceně bytu je využívání prostorné lyžárny/kolárny s možností umístění uzamykatelných skříní. Pokud hledáte druhé bydlení blíže přírodě, je tato exkluzivní nabídka přímo pro Vás nabízíme k prodeji dokončovanou novostavbu horského apartmánu krásným výhledem do okolní krajiny.
Apartmán se nachází ve vyhledávané lokalitě Krušných hor v Loučné pod Klínovcem, v blízkosti dvou moderních lyžařských středisek (Skiareál Klínovec a Skiareál Fichtelberg) a německého lázeňského města Oberwiesenthal s kvalitní občanskou vybaveností. Poloha 1000 - 1244 m n. m. garantuje v zimě dostatek sněhu, v létě naopak velmi příjemné klima. Přímo v místě je bezpočet možností k turistice, cyklovýletům, sjezdům na horských kolech (Trail Park Klínovec), jízdě na běžkách, či houbaření.
Apartmán je součástí nadčasového viladomu o sedmi bytových jednotkách a nachází se v klidné části obce. Dokončení stavby domu je plánováno na 3. čtvrtletí 2025.
U apartmánu určitě oceníte promyšlené dispozice, příjemnou orientaci na tři světové strany a realizaci v nadstandardním provedení. Tepelnou pohodu Vám zajistí podlahové teplovodní vytápění a tepelná čerpadla. Vysoký komfort bydlení doplní výtah a vlastní parkovací stání za domem. V přízemí domu bude možné využívat kolárnu s lyžárnou pro uskladnění letního či zimního sportovního vybavení.
Váš apartmán Vám může sloužit nejen pro vlastní rekreaci, ale i jako zajímavá obchodní příležitost. Jeho koupí si můžete zajistit zajímavé podnikání, když se rozhodnete apartmán pronajímat v době, kdy ho sami nebudete využívat. Pro tento případ Vám můžeme zajistit komplexní servis v oblasti krátkodobého pronájmu.
Všechny jednotky budou v rámci projektu kolaudovány jako bytové, proto bude možné jejich koupi financovat prostřednictvím hypotečního úvěru, a to až do výše 80%-90% hodnoty nemovitosti. Pokud Vás nabídka zaujala neváhejte nás kontaktovat. S financováním Vám rádi pomůžeme.
Realitní specialista
Zajímá vás více o možnostech koupě nemovitostí v této lokalitě?
Máte zájem o tento developerský projekt?
Zajímá vás více o možnostech koupě nemovitostí na horách?
Máte zájem o tuto nemovitost?
Máte zájem o tento developerský projekt?
Zanechte nám kontakt a my vám rádi představíme exkluzivní nabídky, poradíme s výběrem lokality a zodpovíme všechny vaše otázky.
800 100 164
Provoz linky: nonstop 24/7
